RUSTEBERG
AI Rendering
Contact
White Papers
Change Furniture
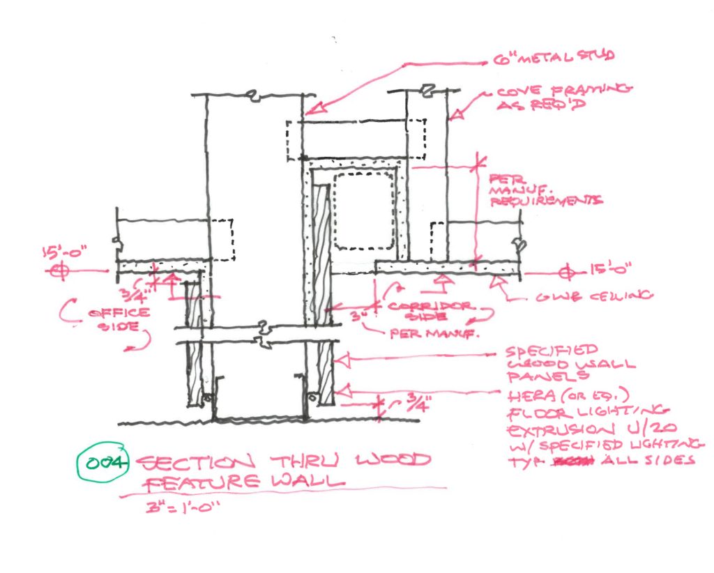
Sketch to CAD
Concept Board Exploration
2025
Make This a Technical Drawing
Render an Isometric View of the Detail